-
-
-
Tổng tiền thanh toán:
-
MỘT SỐ DỰ ÁN PHÒNG CHÁY CHỮA CHÁY & CỨU NẠN CỨU HỘ TIÊU BIỂU
06 November, 2023
MỘT SỐ DỰ ÁN PHÒNG CHÁY CHỮA CHÁY & CỨU NẠN CỨU HỘ TIÊU BIỂU
Với kinh nghiệm làm việc nhiều năm trong các lĩnh vực liên quan đến Phòng Cháy Chữa Cháy và Cứu Nạn Cứu Hộ (PCCC & CNCH), và nhiều dự án đã thành công tốt đẹp. Chúng tôi luôn đảm bảo sự uy tín và chất lượng tốt nhất trong việc cung cấp các dịch vụ như:
- Tư vấn thiết kế, thẩm duyệt, giám sát, nghiệm thu PCCC cho các dự án.
- Kiểm định, cung cấp trang thiết bị và tuyên truyền tập huấn PCCC & CNCH cho các dự án dân dụng công nghiệp và chuyên ngành.
Một Số Hình Ảnh Dự Án PCCC & CNCH Tiêu Biểu:
![]() |
Cung cấp Trang thiết bị và Bảo trì Hệ thống PCCC thường niên - Trường Đại học Sư phạm Hà Nội 2 - Xuân Hòa, Vĩnh Phúc
![]() |
Bảo trì Hệ thống PCCC - Nhà máy Interflex Vina - Vĩnh Phúc 2017
![]() |
Tư vấn Giám sát, Nghiệm thu Hệ thống PCCC Dự án Nhà máy Kaga Rental - Hưng Yên năm 2017
![]() |
Tư vấn Giám sát, Nghiệm thu và Cung cấp Trang thiết bị cho Hệ thống PCCC Dự án Nhà máy Loa Thành - Vĩnh Phúc 2019
![]() |
Tư vấn Giám sát, Nghiệm thu Hệ thống PCCC Dự án Nhà máy SEI Optifrontier Viet Nam - KCN Thăng Long III, Vĩnh Phúc 2019
|
Tư vấn Thẩm duyệt Thiết kế Hệ thống PCCC Dự án Nhà máy TKR Manufacturing Viet Nam - Vĩnh Phúc 2020
|
Tư vấn Giám sát, Nghiệm thu Hệ thống PCCC Dự án Nhà máy TKR Manufacturing Viet Nam - Vĩnh Phúc 2020
![]() |
Tư vấn Thẩm duyệt Thiết kế Hệ thống PCCC Dự án Nhà máy Yamamoto Mental Precision Viet Nam - Vĩnh Phúc 2020
![]() |
Cung cấp Trang thiết bị PCCC - Bệnh viện Nhiệt đới Trung ương Cơ sở 1 - Đông Anh, Hà Nội 2020
![]() |
Cung cấp Trang thiết bị PCCC - Bệnh viện Nhiệt đới Trung ương cơ sở 2 - Đống Đa, Hà Nội 2020
![]() |
Tổng quan Nhà máy Hi-lex giai đoạn 5 - TP. Hải Phòng năm 2020
![]() |
Tư vấn Thẩm duyệt Thiết kế Hệ thống PCCC Nhà máy Hi-lex Giai đoạn 5 - TP. Hải Phòng năm 2020
![]() |
Tư vấn Thẩm duyệt Thiết kế Hệ thống PCCC Nhà máy SEI Optifrontier Viet Nam Mở rộng - KCN Thăng Long III, Vĩnh Phúc 2020
![]() |
Cung cấp trang thiết bị PCCC cơ sở cho Nhà máy - KCN Thăng Long III, Vĩnh Phúc năm 2020
Tuyên truyền Tập huấn PCCC cho Nhà máy - KCN Thăng Long III, Vĩnh Phúc năm 2020
Tuyên truyền Tập huấn CNCH cho Nhà máy - KCN Thăng Long III, Vĩnh Phúc năm 2020
![]() |
Tư vấn thẩm duyệt thiết kế Nhà máy SUMIRIKO VIỆT NAM KCN - Thăng Long III, Vĩnh Phúc 2021
![]() |
Tư vấn Thiết kế Thẩm duyệt Hệ Thống PCCC nhà mở rộng phòng phân phối 22KV ,KCN Thăng Long I - Hà Nội 2021
![]() |
Tuyên truyền Tập huấn PCCC và CNCH cho Nhà máy - KCN Thăng Long III, Vĩnh Phúc năm 2022
![]() |
Tuyên truyền Tập huấn PCCC và CNCH cho Nhà máy - KCN Thăng Long III, Vĩnh Phúc năm 2022
![]() |
Tuyên truyền Tập huấn PCCC và CNCH cho Nhà máy - KCN Thăng Long III, Vĩnh Phúc năm 2022
![]() |
Tư vấn Thẩm duyệt Thiết kế Hệ thống PCCC Nhà máy SEI Optifrontier Viet Nam - Mở rộng - KCN Thăng Long III, Vĩnh Phúc 2022
![]() |
Tư vấn Thẩm duyệt Thiết kế Hệ thống PCCC Nhà máy Terumo Việt Nam - Cải tạo - KCN Quang Minh - Hà Nội 2022
![]() |
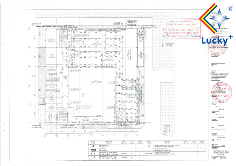
Tư vấn Thẩm duyệt Thiết kế Hệ thống PCCC Nhà máy Enplas Việt Nam - Cải Tạo - KCN Thăng Long III, Vĩnh Phúc 2022
![]() |
Tuyên truyền Tập huấn PCCC và CNCH cho Công ty - KCN Bá Thiện I, Vĩnh Phúc 2023
![]() |
Tư vấn Thẩm duyệt Thiết kế Hệ thống PCCC Nhà máy Sumitomo Nacco Forklift Việt Nam Cải Tạo - KCN Thăng Long I - Hà Nội 2023
![]() |
Tư vấn Thẩm duyệt Thiết kế Hệ thống PCCC Nhà máy Kho Lạnh Việt Nam YOKOREI - KCN An Thạnh Long An 2023
![]() |
Tư vấn Thẩm duyệt Thiết kế Hệ thống PCCC Sửa chữa Hội trường lớn - Học viện Báo chí và Tuyên Truyền - Cầu Giấy - Hà Nội 2023
Xin chân thành cảm ơn!
Mọi thông tin chi tiết, Quý khách vui lòng liên hệ với chúng tôi để có được sự phục vụ tốt nhất!


























